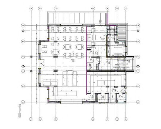
Kat Planı
İç Mekan Renderları
Bu projede, giriş ve lobi alanı, üç farklı tipte otel odası ve bunlara ait banyolar, gece holü ve restoran bölümü detaylı biçimde tasarlanmıştır. Tasarımda, özellikle Japandi konsepti temel alınarak doğal malzeme kullanımı ön plana çıkarılmış; minimal Japon estetiği ile İskandinav sadeliği bir araya getirilmiştir. Ahşap, taş ve doğal dokuların özenle harmanlandığı bu iç mekanlar, Assos’un tarihi dokusu ve doğal yapısıyla uyum içinde olacak şekilde yeniden yorumlanmıştır. Mekânlar sadece estetik değil, aynı zamanda işlevsellik ve konfor açısından da çağdaş mimari beklentileri karşılayacak şekilde tasarlanmıştır. Bu yaklaşım, hem kullanıcı deneyimini zenginleştirmekte hem de mekânın bulunduğu çevreyle bütünlük kurarak kültürel bağlamı güçlendirmektedir.
Proje Teslim Görselleri
Ahşap detaylar, sıcak aydınlatmalar ve natürel renk paleti mekânlara huzurlu, şık ve davetkâr bir atmosfer kazandırmıştır. Konforlu oturma alanları, modern çizgilerle estetik ve işlevsellik arasında dengeli bir tasarım sunarken; sade ve zarif detaylarla oluşturulmuş yatak odası kişisel konforu ön planda tutmuştur. Sosyal etkileşimi destekleyen bar bölümü ise hem misafir ağırlamaya uygun hem de günlük kullanıma elverişli olacak şekilde planlanmıştır. Genel tasarımda, yaşam kalitesini artıran, estetik ve fonksiyonu buluşturan bütüncül bir yaklaşım benimsenmiştir.

